55,87 m² + 13,06 m² Veranda
Das eigene Zuhause im Herzen der Alpen
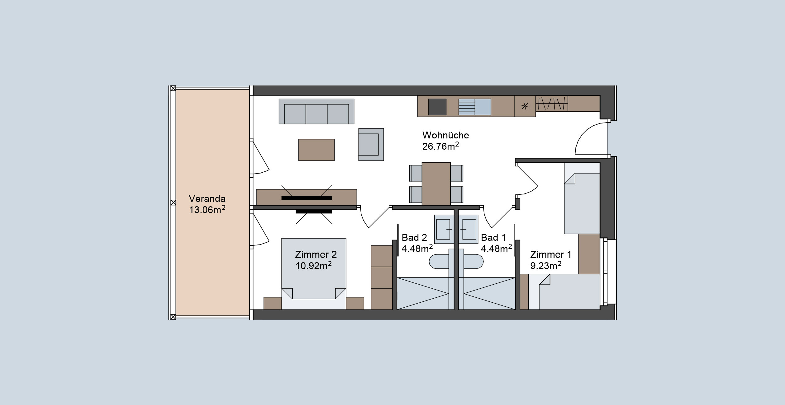
Chalet Radin I, Top a.2
Kaufpreis
auf Anfrage
Investorenpreis auf Anfrage
Tiefgaragenparkplatz
auf Anfrage
inkl. e-Ladestation
Wohnfläche
55,87 m²
Veranda
13,06 m²
Zuzüglich Nebenkosten: 3.5 % Grunderwerbssteuer, 1.1 % Grundbuchseintragung, 1,2 % Vertragserrichtungskosten brutto zzgl. Barauslagen und Beglaubigungskosten
Die Preise sind inklusive Umsatzsteuer.
Hinweis: Der Bau zum Fixpreis und mit Bauzeitgarantie ist aktuell aufgrund der starken Preissteigerungen und der zunehmenden Rohstoffknappheit nicht mehr verlässlich planbar. Sobald sich die Situation wieder beruhigt hat, legen wir mit vollem Elan los. Merken Sie sich jetzt schon Ihre Traumferienwohnung vor und wir halten Sie über den Projektablauf auf dem neusten Stand.
Zur Ferienwohnung
Auf knapp 56 Quadratmetern präsentiert sich die Wohnung mit hellen Räumen, eleganter Einrichtung und stimmigen Eichenholz-Elementen. Zwei Schlaf- und zwei Badezimmer sowie eine großzügige Wohnküche bieten angenehm Platz für vier Personen. Ob beim gemütlichen Essen in der Wohnküche, während der erholsamen Nachtruhe im Schlafzimmer, im Wohlfühl-Badezimmer mit Infrarotkabine oder beim Entspannen auf der Couch vor einem der Flat-TVs – hier lässt es sich leben. Von der Veranda eröffnet sich ein einmaliger Blick auf die umliegenden Berge.
Das Besondere: Die Wohnung hat eine Ferienwidmung und kann problemlos von Interessenten aus dem Ausland gekauft werden.
Ausstattung
- Möblierung: komplette, elegante Einrichtung
- Küche: großzügige Markenküche mit modernen Elektrogeräten
- Badezimmer: Sanitäreinrichtung inklusive Accessoires, Waschmaschine, hochwertige Wand- und Bodenfliesen
- Fußböden: behaglicher Holzparkett, zeitloses Steinzeug mit Fußbodenheizung
- Türen: hochwertige Innentüren
- Fenster: Holz-Alu-Fenster mit Isolierverglasung
- Ökologie: Erdwärmeheizung
- e-Auto: Ladestation bei jedem Parkplatz
Hinweis: Die Darstellungen können Abweichungen zur tatsächlichen Ausführung haben.


